Što je potrebno dizalica pe za podzemnu instalaciju
Za vodovod ili plinovod, najbolje je ugraditi kuglasti ventil za podzemnu instalaciju plastike. Ovaj dizajn može osigurati dovoljno dugo trajanje rada i bez ikakvih problema s održavanjem.
Postoji mnogo opcija za materijale za takve ventile, ali plastična je najprikladnija jer se uopće ne boji vlažnosti i korozije. Objasnit ćemo kako ga instalirati i pokazati tematski videozapis u ovom članku.

PE dizalice
opis

- Polietilenske cijevi su mnogo jeftinije od metala, tako da većina naselja i raznih industrijskih postrojenja ne rade bez komunikacijskih pravaca iz ovog materijala. Osim toga, cijena PE dizalice je znatno manja od one od čelika analogni, ali životni vijek je neizmjerno duži, što također igra značajnu ulogu u izboru materijala za cjevovode.
- Širok rasprostranjenost ovog mehanizma također je posljedica vrlo širokog raspona promjera. - može se postaviti na cijevi s presjekom od 20 do 315 mm i može raditi na temperaturama od -20 ° C do +40 ° C, što je prihvatljivo za bilo koju regiju Ruske Federacije s podzemnom instalacijom.

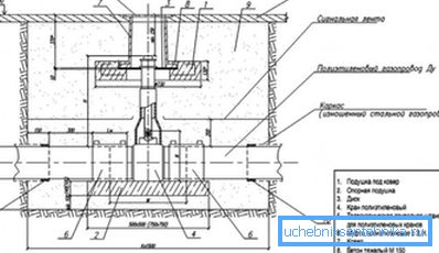
- Osim toga, kuglasti ventil za podzemnu instalaciju može se montirati, bez opremanja za ovu posebnu bušotinu - za njegovo podešavanje dovoljno je izvesti kontrolni mehanizam, a sam čvor može biti prekriven zemljom. Udaljenost do površine tla od cijevi može iznositi od 1.650 mm do 2.750 mm.
- Šipka teleskopa se proširuje kvadratnim šupljim profilom, na čijem je kraju zavaren šesterokutni rukav., koji se montira na os dizalice i rotira pomoću četverokutne / šesterokutne metalne šipke.
- Podzemna krana s kuglicom izrađena je od polimernih materijala (dizajn je namijenjen uskočnom zavarivanju ili cijevnim zglobovima). Izlazi na ovom mehanizmu izrađeni su od PE 100 SDR11 - to je sasvim dovoljno za plinovode s tlakom od 10 bara i vodovodima s tlakom od 18 bara.
Napomena. Na produžni kabel od dvije tanke cijevi postavljena je polietilenska zaštitna poklopca. Mogu se slobodno kretati jedni u drugima.
Specifikacije nekih dizalica

| Pogled. primjena | Za plin 10 bar, za vodu 16 bara |
| SDR | SDR11 |
| materijal | PE80 / PE100, PE2406 / PE3408 |
| Otvaranje / zatvaranje | ? rotacija |
| temperatura | Od -29 do 600ê |
| Vrsta prolaza | Cijeli provrt |
| Pomoćna šipka tipa | Teleskopsko proširenje |
| Vrsta čišćenja | Bez čišćenja, 1 čišćenja, 2 čišćenja |
| Zavarivanje tijela i utičnica | Električna ili spojka |
| Ispitni standardi | EN 1555, ANSI / ASTM B16. 40 |
Tablica SDR11

| broj | Ime | Ono što je napravljeno |
| 1 | kućište | Polietilen (PE) |
| 2 | zvono | Polietilen (PE) |
| 3 | lopta | Polipropilen (PP) |
| 4 | Prostor za loptu | NBR (guma) |
| 5 | Prsten za podršku | Polipropilen (PP) |
| 6 | zaliha | acetal |
| 7 | konektor | Polipropilen (PP) |
| 8 | Prsten za ležaj | NBR (guma) |
| 9 | Prsten za adapter | NBR (guma) |
PE kuglasti ventili
| Promjer (mm) | 20 | 0560 | 20 | 0560 | 20 | 0560 | 20 | 0560 | 20 | 0560 | 20 | 0560 | 20 | 0560 | 20 | 0560 | 20 | 0560 |
| Masa (kg) | 25 | 0560 | 25 | 0560 | 25 | 0560 | 25 | 0560 | 25 | 0560 | 25 | 0560 | 25 | 0560 | 25 | 0560 | 25 | 0560 |
Dimenzije. standard
| Promjer (mm) | pogled |
| 63 | Bez prijenosnika |
| 90 | |
| 110 | |
| 125 | |
| 140 | |
| 160 | |
| 180 | |
| 200 | S prijenosom |
| 225 | |
| 250 | |
| 280 | |
| 315 (puni prolaz). | |
| 355 | |
| 400 |
PE ventil bez čišćenja

| Promjer (mm) | pogled |
| 63 | Bez prijenosnika |
| 90 | |
| 110 | |
| 125 | |
| 140 | |
| 160 | |
| 180 | |
| 200 | S prijenosom |
| 225 | |
| 250 | |
| 280 | |
| 315 (puni prolaz). | |
| 355 | |
| 400 |
Jednim čišćenjem

| Promjer (mm) | pogled |
| 63 | Bez prijenosnika |
| 90 | |
| 110 | |
| 125 | |
| 140 | |
| 160 | |
| 180 | |
| 200 | S prijenosom |
| 225 | |
| 250 | |
| 280 | |
| 315 (puni prolaz). | |
| 355 | |
| 400 |
S dva udarca
Nijanse uređivanja
Napomena. U Ruskoj Federaciji trenutno podzemna dizalica za vodu ili plin nema dovoljno široku primjenu. Ipak, mnoge građevinske organizacije pokazuju zdravo zanimanje za takve građevinske uređaje.

Ovi ventili u tlu ili pod zemljom (koristeći bušotine) mogu se koristiti u plinskim postrojenjima. Ali, istodobno, uputa ne preporučuje korištenje bušotina na stazi.
Stvar je u tome što pravila za rad u tim spremnicima i preporuke za njihovo otvaranje znatno otežavaju rad ventila ove vrste.
OAO Gazprom je razvio određene tehničke standarde u kojima je ugradnja ventila od polietilena (cijena nije uzeta u obzir) poželjno je izvršiti bez bušotina.
Instalacija se preporuča samo u slučajevima kada je cjevovod instaliran na veliku dubinu, što ne dopušta upotrebu teleskopske aktuatora za podešavanje.

Postoji standardni STO GAZPROM 2-2.1-093-2006 koji pokazuje (ilustrira) rješenja za projektiranje, izgradnju i rekonstrukciju plastičnih cjevovoda za plinovod.
Opisuje različite opcije za instaliranje PE kuglastih dizalica koje se mogu izvesti:
- Izravno na kolovozu (usred ceste);
- Izravno na kolovozu (usred ceste) i na pješačkim pločnicima, kao iu parku;
- Pod tepih (travnjak) u parku ili šumskom pojasu.
zaključak
Instalacija PE slavina s vlastitim rukama za kućni vodovod u ovom trenutku je nešto težak, jer nema posebne opreme za to, koji se isporučuje kroz mrežu hardvera trgovinama.
Ako govorimo o plastici, onda za privatni sektor preferiraju se polipropileni i trenutno materijal u potpunosti zadovoljava potrebe stanovnika privatnog sektora.